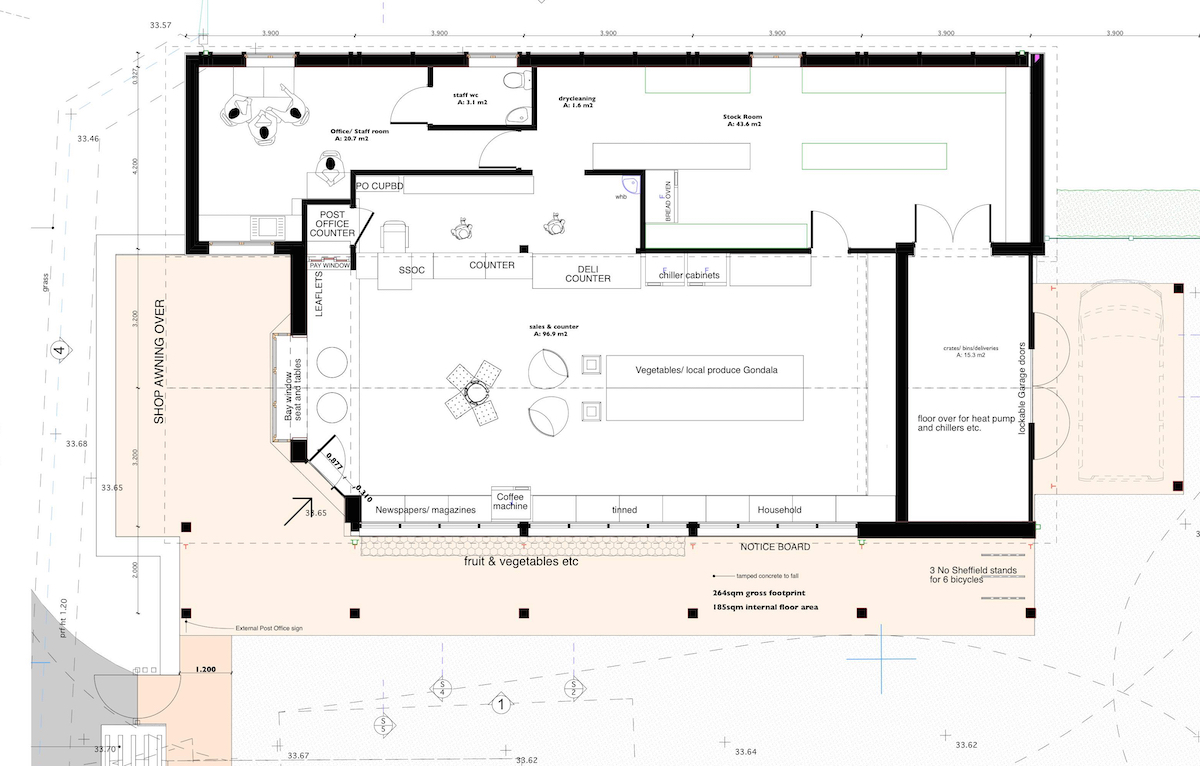
The villagers of Woodgreen in Hampshire were confronted by the imminent closure of their Post Office & shop & commissioned us to build a brand new facility in the village. They worked for several years to gain support and funding. The finished building is light, bright and very economical to run.
The Woodgreen Community Shop website is here and some building progress shots are here.
Winner of the 2013 Green Apple Award for the Built Environment and Architectural Heritage