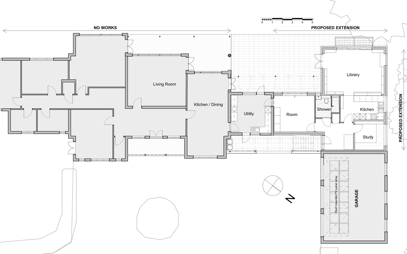
1960's extended

Nestled amidst panoramic vistas, this distinguished 1960s bungalow has been thoughtfully extended to accommodate the evolving needs of its residents. Designed as a bespoke annexe for a book-loving, retired architect, the addition offers a serene and sophisticated retreat while ensuring the original home remains a cherished space for the next generation. Although strikingly contemporary, the extension has been meticulously crafted to harmonise with the existing architecture, paying homage to the bungalow’s refined character while introducing a fresh dimension of modern design.